HOME
事業概要
雲井通5丁目の再整備
ご挨拶
トピックス
お問い合わせ
テナント出店問合せ
テナント出店問合せ
テナント出店問合せ
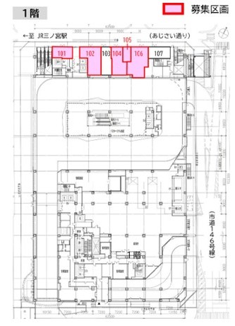
■募集区画位置図・一覧表(問合せ先)資料ダウンロード
募集区画位置図
店舗
募集区画一覧表(お問い合わせ先)